
Noto
Focal Wall
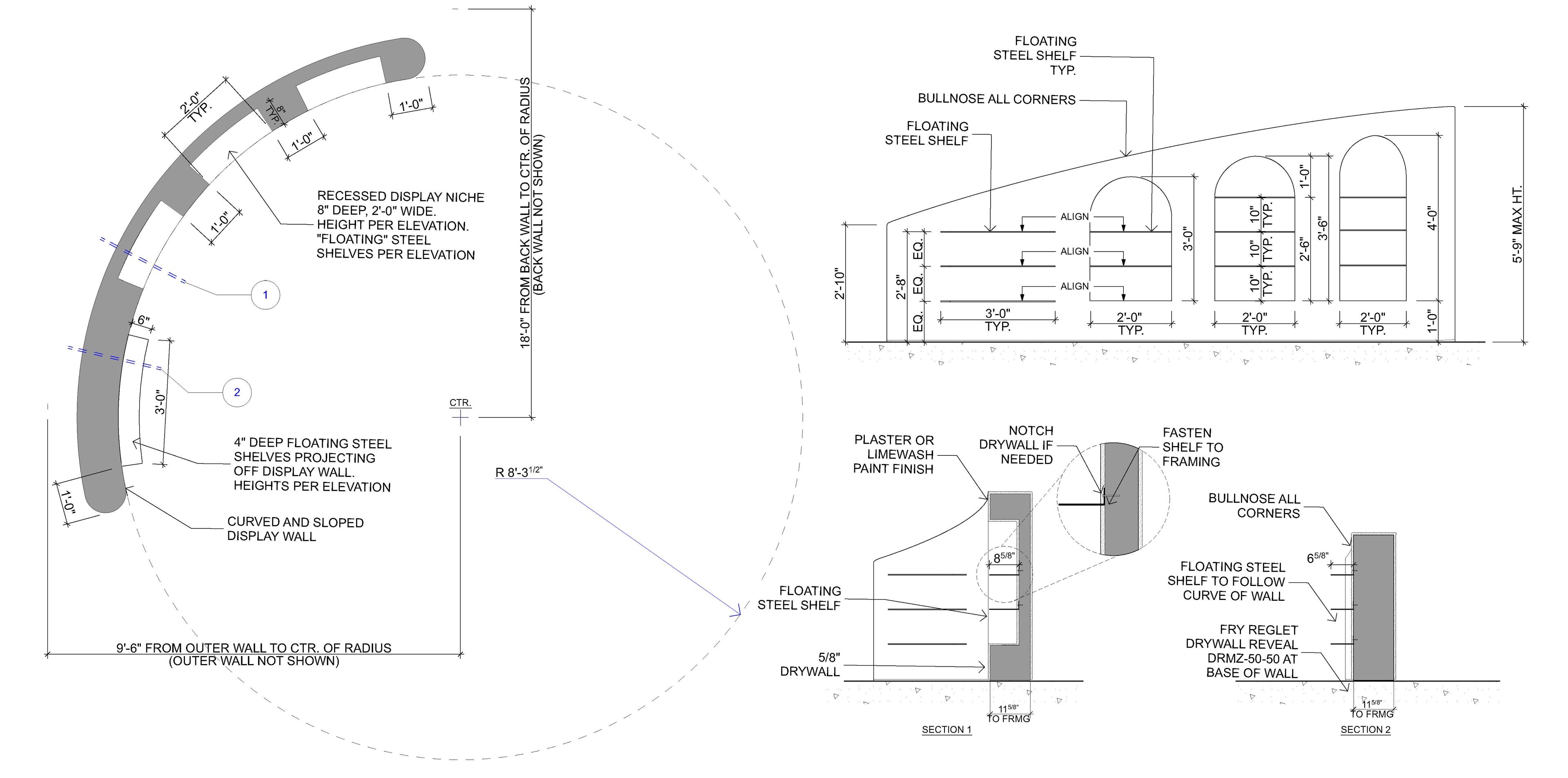
The prominent feature for Noto Botanics is a curved display wall right in the center. A mossy green lime wash finish takes inspiration from the ethos of the brand and signifies vitality and growth.

Starting from one corner is the curved couch suspended midair by curvilinear steel supports. Gone is the heft associated with sofas, the heavy padding and concealed inner body stripped away.
What you see is all there is: cushion pads atop white metal supports (podiums). It’s modular, reconfigurable for large or small gatherings and orientable to any sector of the central radius.

Abutting right against the display wall is the first series of floating shelves projecting out of the wall. These shelves were cut to precise measurements by CNC machines to ensure the radial back edges would eliminate unsightly gaps. Corners are rounded off to ensure no accidental cuts or scraps.
The next series of display niches follow the gradual slope of the wall increasing in height. The floating steel shelves here at twice as deep with even more accuracy needed as imprecise sides will dig into the framed opening.

Screws anchoring each shelf are concealed behind the final layer of drywall and then covered by the lime wash. A calculated detail necessary to maintain the illusion of seamless floating shelves.

As our modernist forefather Mies Van Der Rohe said, “God is in the details.” The bane of every designer’s existence is striving to achieve the perfect detail in an imperfect world. What looks simple is often the result of deliberate detailing and experienced foresight. Learning from the past, always.
